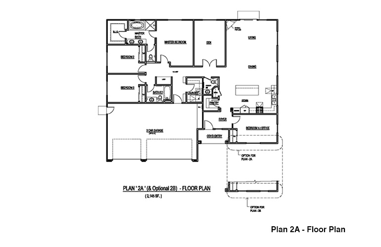
22365 Barton Rd, Grand Terrace, Ca 92313
- 4 bedroom
- 2.5 bathroom
- 2,145sqft
- 22365 Barton Rd, Grand Terrace, Ca 92313
This new home in Grand Terrace features 9' Ceilings, Great Room, Kitchen Island, Stainless Steel Appliances, Granite Countertops, Panel Doors, Downlights, and Custom cabinets throughout. All of this is nestled in the quiet city of Grand Terrace where you can enjoy great schools and city parks.
